*** 360 Virtual Tour on this STUDENT PROPERTY*** A large 6 double bedroom student property in the heart of Leamington Spa. The property is extremely spacious throughout and has a large kitchen with appliances, lounge, 6 double bedrooms and 2 bathrooms with additional toilet. outdoor space not included. Available 1st September
  • Student Property
  • 6 bedrooms
  • 2 bathrooms
  • Large Lounge
  • Town centre
  • Close to bus stop
  • 360 tours available on selected properties
  • Available From: Sep 1, 2026
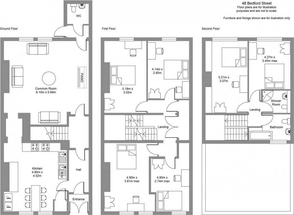
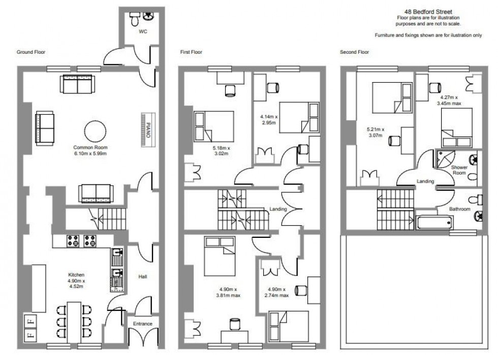
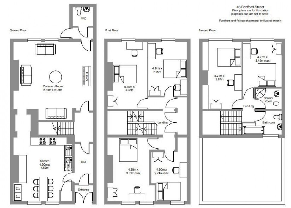
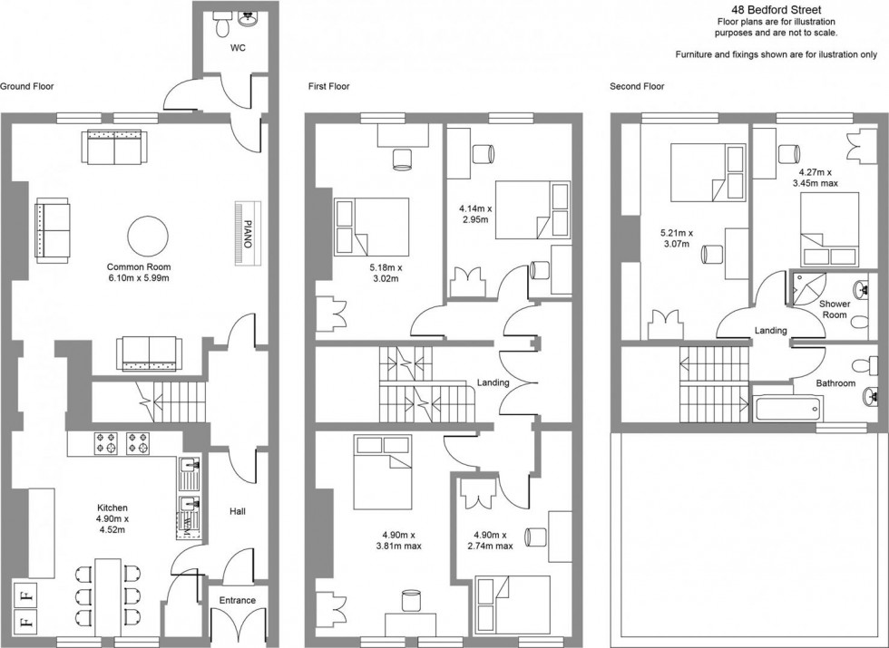
Floorplan for Bedford Street, Leamington Spa Floorplan for Bedford Street, Leamington Spa
EPC Graph for Bedford Street, Leamington Spa
Similar Properties

Book a valuation

Find out how much your property is worth