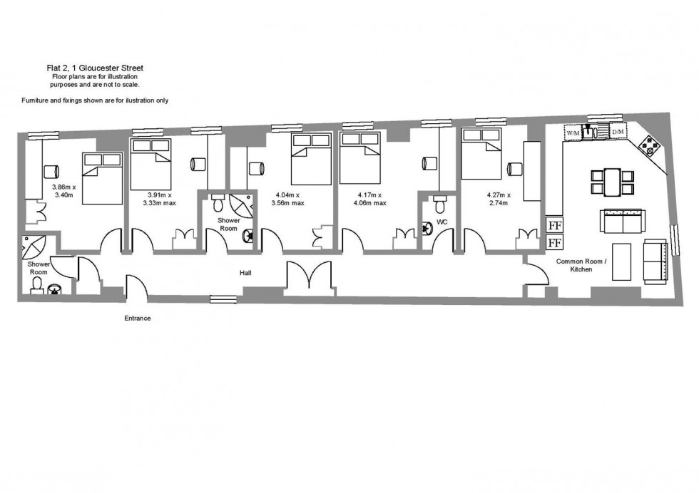
** 360 Virtual Tour on this STUDENT PROPERTY** A spacious 5 double bedroom student property in a convenient location near the Uni bus stop in Leamington Spa. The property has secure gated entry, 2 modern shower rooms, fitted bedroom furniture and kitchen/lounge with a large TV. FREE WI-FI. See our pictures, floor plan and video. Available 15th August.
  • Student Property
  • Wifi included
  • Five Bedroom Apartment
  • Town Centre Location
  • Close to University Bus Route
  • 360 Virtual Tour Available
  • Available 15th August
  • Available From: Aug 15, 2026
Floorplan for Gloucester Street, Leamington Spa
EPC Graph for Gloucester Street, Leamington Spa
Similar Properties

Book a valuation

Find out how much your property is worth