61, Russell Terrace, Leamington Spa

Let Agreed £2,100 PCM

4 2 1
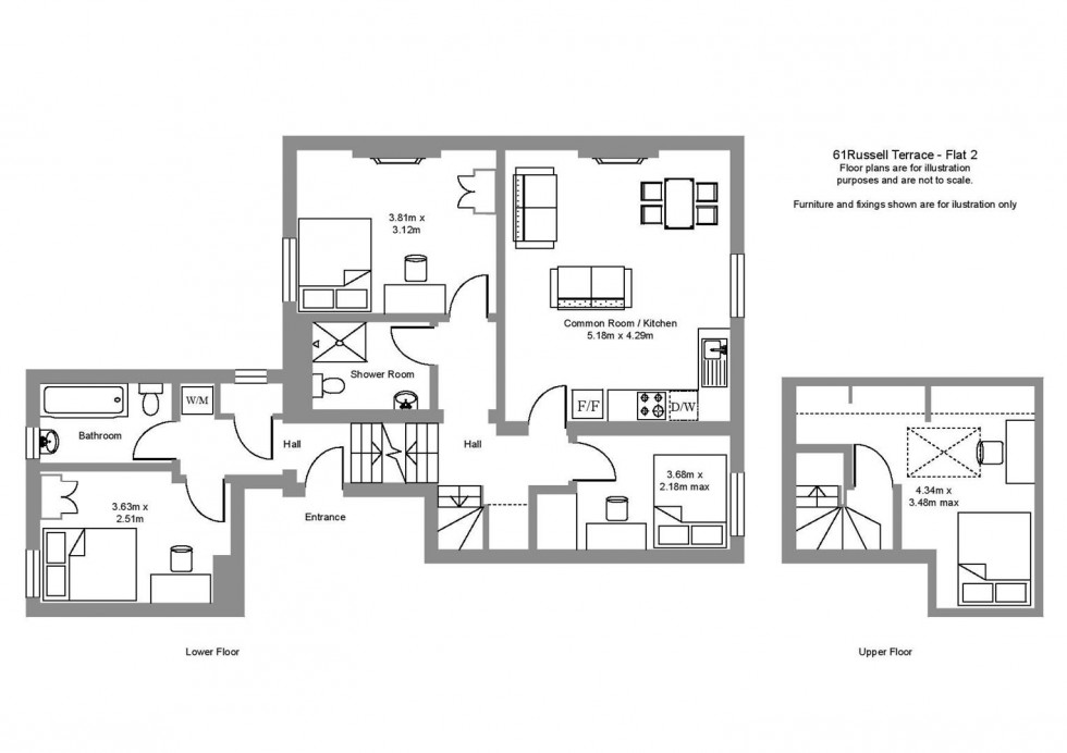
**360 Virtual Tour on this STUDENT PROPERTY** Four bedroom student apartment in an excellent location ideal for the town centre. Four bedrooms, two bath/shower rooms and open plan living area with kitchen. FREE WIFI. Viewing highly recommended. Available 15th August.
  • Student Property
  • Wifi included
  • Close to Town centre
  • Closer to university bus route
  • Four Bedrooms
  • 2 Bathrooms
  • Available From: Aug 15, 2026
Floorplan for 61, Russell Terrace, Leamington Spa
EPC Graph for 61, Russell Terrace, Leamington Spa
Similar Properties

Book a valuation

Find out how much your property is worth