9 The George, George Street, Leamington Spa

Let Agreed £1,395 PCM

3 1 1
**360 Virtual Tour on this STUDENT PROPERTY**

Step into a world of luxury and convenience with this bespoke three-bedroom student apartment, perfectly situated for university life and vibrant town living. Flat 9 offers three spacious double bedrooms, designed with comfort and style in mind, making it ideal for students who appreciate a premium living experience.

Enjoy easy access to the University bus stops and the town centre, putting everything you need just moments away. The property also benefits from a shared outdoor social area, perfect for relaxing or catching up with friends. High-speed Wi-Fi is included, ensuring you stay connected for study and leisure.

Available from 1st September, this stylish student residence combines elegance, practicality, and community living for the perfect home throughout your academic year.
  • Bespoke three-bedroom student apartment, designed with comfort and style in mind
  • Ideally located near University bus stops and within easy reach of the town centre
  • Three spacious double bedrooms, perfect for sharing or personal study space
  • Access to a shared outdoor social area, ideal for relaxing and socialising
  • FREE high-speed Wi-Fi included, perfect for study and streaming
  • Stylish, modern interiors blending practicality with contemporary design
  • Close to cafés, shops, and vibrant student life, making it a true community hub
  • 360 Virtual Tour Avaiable.
  • Available from 1st September, ready for the upcoming academic year
  • Available From: Sep 1, 2026
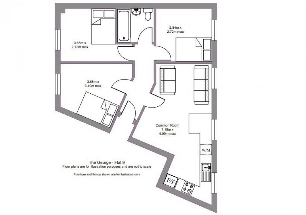
Floorplan for 9 The George, George Street, Leamington Spa
EPC Graph for 9 The George, George Street, Leamington Spa
Similar Properties

Book a valuation

Find out how much your property is worth