Hunningham, Leamington Spa

Sold Subject to Contract £435,000 (Freehold)

2 2 1
Mill Barn, Hunningham, Near Leamington Spa, South Warwickshire

A delightful single-storey barn conversion with a unique tower study/occasional bedroom, beautifully set in the heart of the picturesque village of Hunningham, near Leamington Spa. Surrounded by rolling Warwickshire countryside, this characterful home offers just over 1,000 sq ft of stylish and flexible living space.

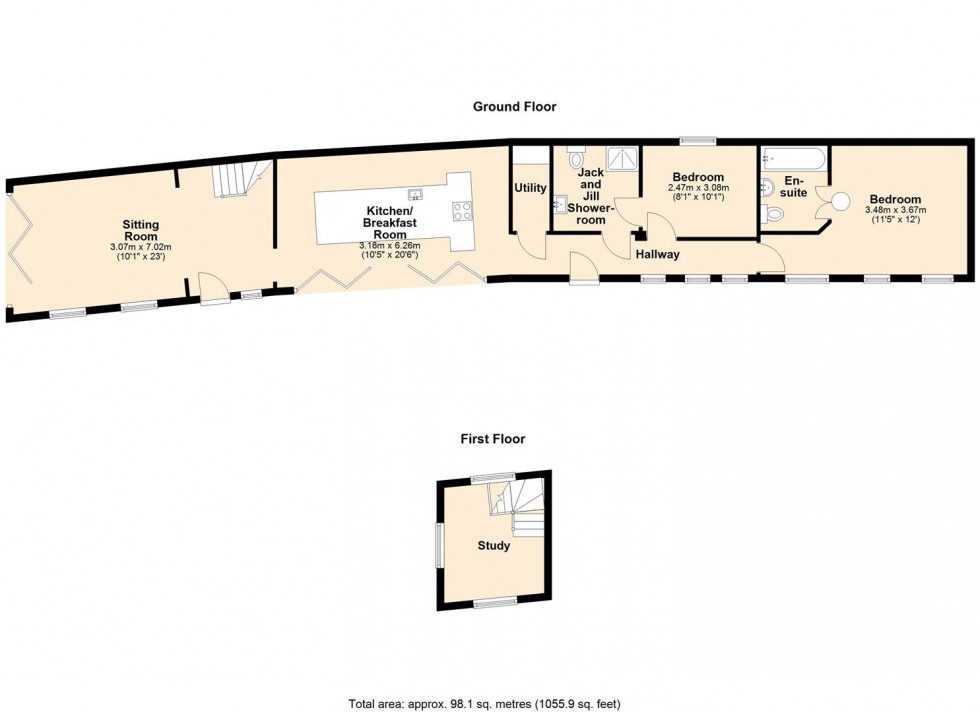
As you step inside, warm oak doors and matching oak floors create an immediate sense of welcome. To the left lies the main living space, and to the right, the bedrooms and bathrooms.

The stunning shaker-style kitchen features slate worktops, a limestone floor, and is flooded with natural light from full-width glazed bi-fold doors. These open directly onto the garden — perfect for al fresco dining and relaxed outdoor living on sunny days.

Beyond the kitchen is an inviting living room, also with oak flooring, impressive ceiling height, and another set of bi-fold doors opening to the garden. A staircase leads to the tower room, offering panoramic views of the surrounding countryside — ideal as a home office or occasional third bedroom.

At the opposite end of the property are two elegant bedrooms, each with vaulted ceilings and oak floors. One features a unique glass-topped well as a striking design element. These are served by two luxurious bathrooms with heritage-style fittings.

Outside

Mill Barn is set within a secure private development, accessed via electric gates. The sunny, lawned gardens are enclosed on three sides with classic post-and-rail fencing and a handsome brick boundary wall at the rear.

The property benefits from mains gas, electricity, and water, as well as a biodigester water treatment system.

Vacant possession available from early October 2025. Considerable interest anticipated — early viewing highly recommended.
  • ** OPEN HOUSE **
  • Charming single-storey barn conversion with unique tower study/bedroom
  • Located in the pretty Warwickshire village of Hunningham
  • Over 1,000 sq ft of characterful living space with oak floors and doors
  • Spacious living room with high ceilings and garden access
  • Two elegant bedrooms, one with glass-topped feature well
  • Two luxurious bathrooms with heritage fittings
  • Secure gated development with private garden
  • Air Conditioning + Solar panels
Floorplan for Hunningham, Leamington Spa
EPC Graph for Hunningham, Leamington Spa

Book a valuation

Find out how much your property is worth