The Old Walled Garden, Compton Verney, Warwick

Sold Subject to Contract £1,200,000 (Freehold)

4 3 4
It’s a rather pleasant drive out to Compton Verney, through some lovely countryside. Many of us have no doubt made the journey several times, visiting the art gallery and park contained within the elegant Grade I listed house there.
There are a small number of properties that sit above Compton Verney, and a smaller number still that enjoy views down to the lakes and parkland of the estate, of which No. 6 The Old Walled Garden is one.
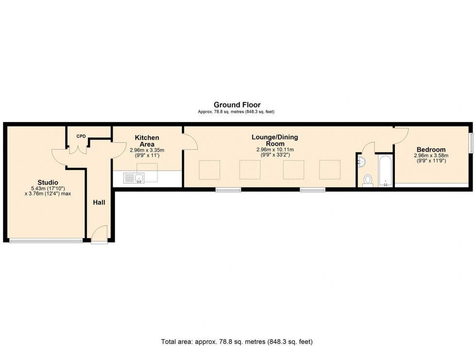
No. 6 is a detached bungalow, with self-contained annex, large carport and substantial grounds tucked away at the end of a private driveway—the epitome of peace and quiet in harmony with nature.
The bungalow has wonderful living spaces, bathed in natural light and with views across the landscaped garden. There’s also a natural wood floor that just glows in the light; it’s easy to picture any season in this home, whether huddled around the log burner or with doors flung open in the summer. Additionally, three bedrooms (including a master suite) and three bathrooms offer versatile living arrangements. Finally, the reception hall is worth a mention—sumptuous and dark.
The self-contained studio/annex has long been ancillary accommodation for visiting family and an art studio for my talented client. Children speak of their “best night’s sleep” away from the hustle and bustle of daily life. The inclusion of this annex further adds to the versatility of this country home.
This home isn’t all views and gardens—it’s full of practicalities too, such as the triple car port with store and workshop (the latter needing some repair), together with a generous gravel driveway.
Saving the best till last brings us neatly to the gardens and paddock which total about 3 acres. No. 6 is a gardener’s dream, with distinct areas of paved terracing for alfresco dining, lawn, kitchen garden, fruit trees, summer house, natural pond and much, much more—all with majestic views across the paddock, and the Compton Verney estate beyond.
  • Approximately 3 acres of house, gardens and paddock
  • Elevated plot with majestic lake/parkland views
  • Detached bungalow + self-contained annex
  • Light, open living; 3 beds/3 baths; sumptuous hall
  • Handmade kitchen with granite work surfaces
  • Triple car port, store, workshop
  • Gardens & paddock: terraces, lawn, kitchen garden, pond, fruit trees
  • Adjacent to Compton Verney: historic Adam/Brown landscape; vibrant gallery & park
  • Connections: 20–30 mins to key stations; ~1h20 to London; ~35–40 mins to BHX; ~1h45 to London by car
  • Schools: Kineton Primary/High; Stratford Girls’ Grammar; Warwick independents
Floorplan for The Old Walled Garden, Compton Verney, Warwick Floorplan for The Old Walled Garden, Compton Verney, Warwick Floorplan for The Old Walled Garden, Compton Verney, Warwick
EPC Graph for The Old Walled Garden, Compton Verney, Warwick

Book a valuation

Find out how much your property is worth